Contact Us
9419187227
Address
H No.170, Sector 5,Trikuta Nagar, Jammu
Send Email
ar.ajaymengi@gmail.com
Home
About Us
Our Team
Services
Projects
List of Projects
Contact Us
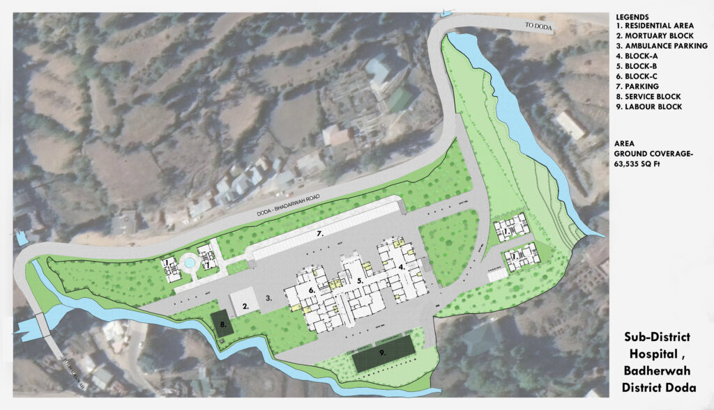
Badherwah Hospital
Home
Badherwah Hospital